Rustico in vendita

Paceco, Via Giuseppe Drago Di Ferro
€ 39.000
5 locali 5 locali
274 Mq 274 Mq
1 bagno 1 bagno

Rustico in vendita

Paceco, Via Giuseppe Drago Di Ferro

Descrizione annuncio

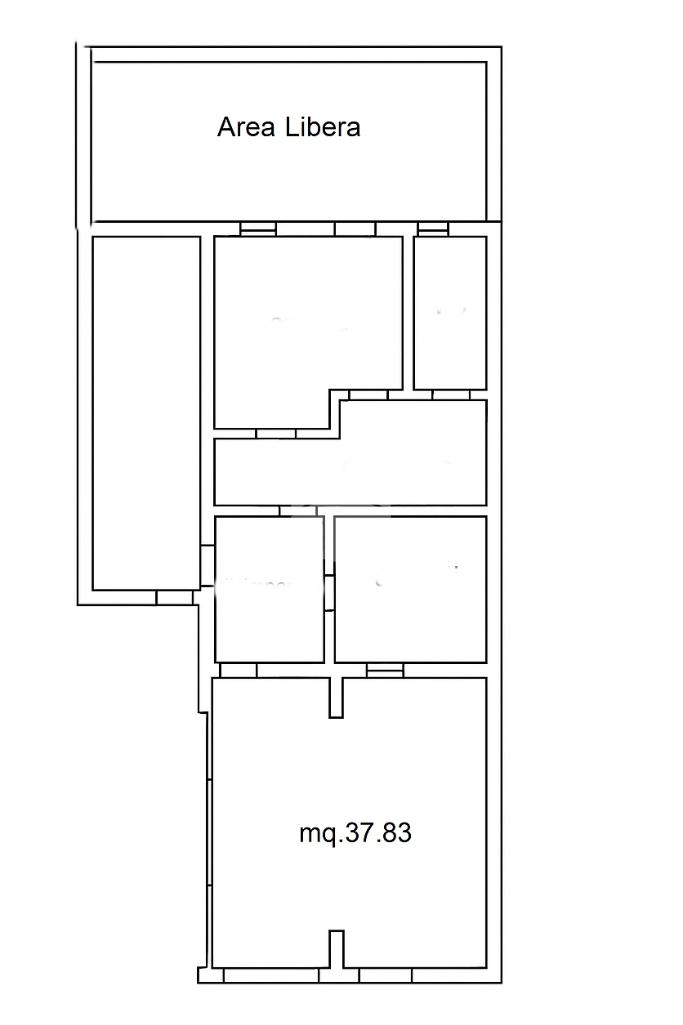
A Paceco, un tranquillo comune a pochi chilometri da Trapani, proponiamo in vendita un interessante terratetto disposto su due livelli, perfetto per chi è alla ricerca di un immobile da ristrutturare e personalizzare secondo i propri gusti.

L'abitazione si sviluppa su due piani: al piano terra troviamo due ingressi indipendenti, uno dei quali conduce direttamente alla scala che collega il piano superiore, mentre l’altro dà accesso tramite un portone ad un locale utilizzabile ad uso grage in quanto fornito di saracinesca con altezza del tetto di 4 metri, da li si accede anche a vari locali con annsso una piccola area libera .

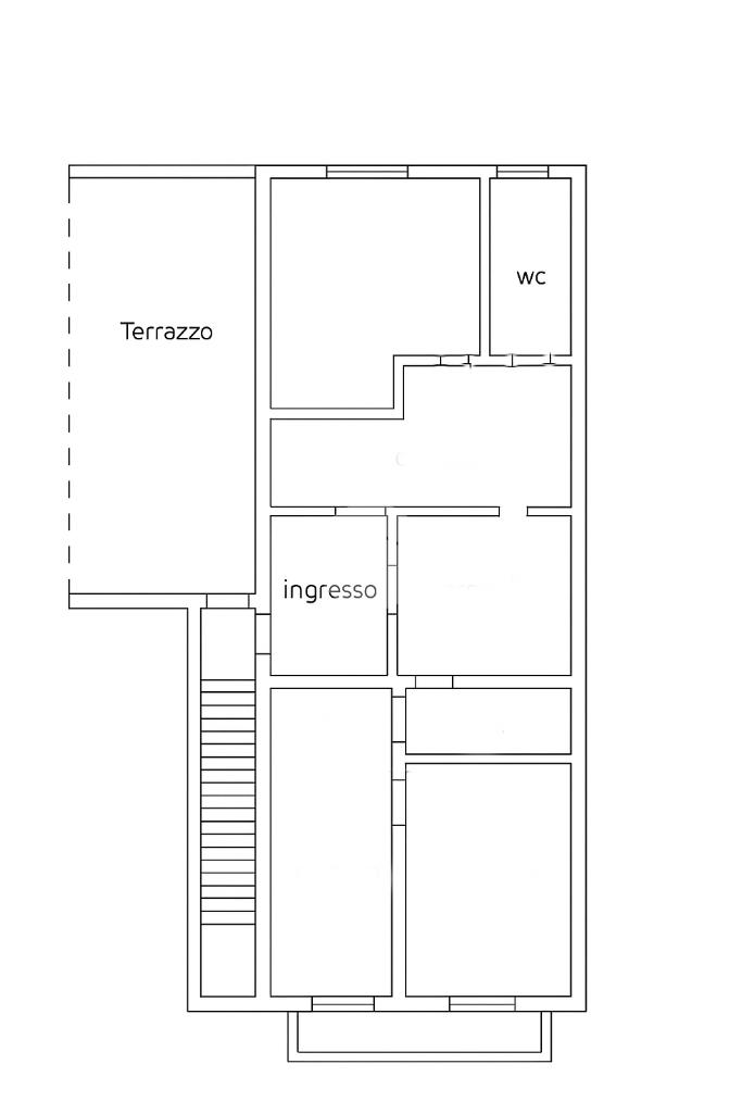
Salendo al primo piano, la disposizione interna ricalca quella del piano terra, con tre ambienti distinti e un secondo bagno, offrendo così ampi spazi che possono essere adattati a diverse esigenze abitative il secondo piano gode anche di una terrazza esclusiva

L’immobile è completamente da ristrutturare, ma proprio per questo rappresenta una vera occasione per chi desidera creare una casa su misura, oppure per chi è alla ricerca di un investimento con ottime potenzialità, magari per realizzare una casa vacanze o una struttura ricettiva.

La posizione è molto comoda, in una zona tranquilla ma ben collegata, con tutti i principali servizi nelle vicinanze.

Per maggiori informazioni o per organizzare una visita, siamo a completa disposizione.

Poiche disponiamo delle chiavi l' immobile è possibile visitarlo ogni giorno previo appuntamento telefonico

Mostra tutto

Nelle vicinanze

Trasporto pubblico Trasporto pubblico
Paceco
Paceco
900 m
Trasporto pubblico
180 m
Ricariche auto elettriche Ricariche auto elettriche
Euro Car Trapani | EnelX
1,8 Km
Scuole Scuole
Istituto Comprensivo "Giovanni XXIII"
300 m
Scuole
630 m
Farmacia Farmacia
Blunda Giuseppe & C. s.n.c.
250 m
Accardo Biagia
320 m
Barraco Maria & C. s.n.c.
1,5 Km
Saccà Franco Maria Sergio
2,8 Km
Supermercati Supermercati
Forte
170 m
Conad
170 m
Paghipoco
2,5 Km
Negozi Negozi
Giuseppe Canino Atelier
170 m
Negozi
2,0 Km
Ristoranti Ristoranti
the butcher burger steakhouse
440 m
Villa Immacolatella-Weddings,Suites,Food&Wine
2,9 Km
Mostra tutto

Caratteristiche

Rif.:
61117859
Piano:
2 di 1 (Piano basso)
Box:
1
Balconi:
1
Terrazzi:
1
Camere da letto:
3
Mostra tutto
Prezzo Prezzo
€ 39.000
Rata mutuo Rata mutuo
€ 185 / mese
Spese annue Spese annue
€ 0
Proponi il tuo prezzoProponi il tuo prezzo

Classe Energetica

E
E
E
E
E
E
E
E
E
EP globale non rinnovabile:
101.96 kW h/m² anno
EP globale rinnovabile:
0.00 kW h/m² anno
EP invernale del fabbricato:
EP estiva del fabbricato:
Anno di costruzione:
1935
Riscaldamento:
Assente

Ti interessa visionare l'immobile?

Fissa un appuntamento  Fissa un appuntamento

Richiedi informazioni

Clicca su Leggi per aprire l'informativa
* Questi campi sono obbligatori

Calcola il tuo mutuo

Semplice e senza impegno
Anticipo

( % )
Mutuo

( % )

pochi semplici passi

inserisci i tuoi dati
Questionario completato
Grazie per aver richiesto un appuntamento senza impegno con un nostro Consulente del Credito e Assicurativo.

Hai inserito correttamente tutti i dati necessari e a breve riceverai una e-mail con un link da convalidare per inviare i tuoi dati.
Affiliato
Studio Pepoli Srl
Via Palermo, 74 91100 Trapani (TP)

Il nostro staff


  • Alessia Grimaldi
    Collaboratrice

  • Roberto Puccio
    Responsabile

  • Alessandro Bertolino
    Affiliato
Via Palermo, 74 91100 Trapani (TP)
Zona: Trapani
Mostra su mappa
Orari: lunedì 09–13 15:30–20 martedì 09–13 15:30–20 mercoledì 09–13 15:30–20 giovedì 09–13 15:30–20 venerdì 09–13 15:30–20 sabato 09–13 domenicaChiuso
Affiliato
Studio Pepoli Srl
Via Palermo, 74 91100 Trapani (TP)

2026 Tecnocasa Franchising S.p.A. - P. IVA 08365160152 - Via Monte Bianco 60/A 20089 Rozzano (MI). Ogni agenzia ha un proprio titolare ed è autonoma. Privacy policy | Policy utilizzo | Cookie policy