Casa indipendente in vendita

Misiliscemi, Str. Pietretagliate - Pietretagliate
€ 29.000
3 locali 3 locali
65 Mq 65 Mq
1 bagno 1 bagno

Casa indipendente in vendita

Misiliscemi, Str. Pietretagliate - Pietretagliate

Descrizione annuncio

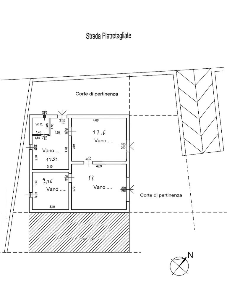
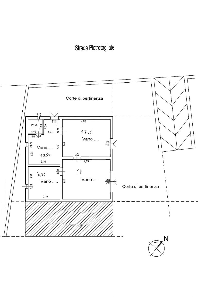
Casa Indipendente con Spazio Esterno .

Nel comune di Misiliscemi, nella tranquilla località di Pietretagliate, è disponibile per la vendita una casa indipendente corte privata

Caratteristiche principali:

Questa proprietà offre una combinazione perfetta di privacy, comodità e possibilità di personalizzazione. Grazie alla sua posizione tranquilla, ti permette di godere della pace della campagna, ma senza rinunciare alla vicinanza ai servizi principali.

Zona ideale per chi ama la natura e cerca una vita serena lontano dal caos cittadino.

Contattaci per maggiori dettagli o per prenotare una visita! Non lasciarti sfuggire questa opportunità unica!

Mostra tutto

Nelle vicinanze

Trasporto pubblico Trasporto pubblico
Salina Grande
Salina Grande
830 m
Farmacia Farmacia
Casuccio Giuseppe & C. s.a.s.
2,3 Km
Ristoranti Ristoranti
Ristoranti
1,4 Km
Villa Immacolatella-Weddings,Suites,Food&Wine
1,7 Km
Casa Village
1,9 Km
Mostra tutto

Caratteristiche

Rif.:
61105548
Piano:
Terra di 1
Totale piani:
1
Balconi:
1
Terrazzi:
1
Camere da letto:
1
Mostra tutto
Prezzo Prezzo
€ 29.000
Rata mutuo Rata mutuo
€ 138 / mese
Spese annue Spese annue
€ 0
Proponi il tuo prezzoProponi il tuo prezzo

Classe Energetica

G
G
G
G
G
G
G
G
G
EP globale non rinnovabile:
212.20 kW h/m² anno
EP globale rinnovabile:
0.00 kW h/m² anno
EP invernale del fabbricato:
EP estiva del fabbricato:
Anno di costruzione:
1942
Riscaldamento:
Assente

Ti interessa visionare l'immobile?

Fissa un appuntamento  Fissa un appuntamento

Richiedi informazioni

Clicca su Leggi per aprire l'informativa
* Questi campi sono obbligatori

Calcola il tuo mutuo

Semplice e senza impegno
Anticipo

( % )
Mutuo

( % )

pochi semplici passi

inserisci i tuoi dati
Questionario completato
Grazie per aver richiesto un appuntamento senza impegno con un nostro Consulente del Credito e Assicurativo.

Hai inserito correttamente tutti i dati necessari e a breve riceverai una e-mail con un link da convalidare per inviare i tuoi dati.
Affiliato
Studio Pepoli Srl
Via Palermo, 74 91100 Trapani (TP)

Il nostro staff


  • Alessia Grimaldi
    Collaboratrice

  • Roberto Puccio
    Responsabile

  • Alessandro Bertolino
    Affiliato
Via Palermo, 74 91100 Trapani (TP)
Zona: Trapani
Mostra su mappa
Orari: lunedì 09–13 15:30–20 martedì 09–13 15:30–20 mercoledì 09–13 15:30–20 giovedì 09–13 15:30–20 venerdì 09–13 15:30–20 sabato 09–13 domenicaChiuso
Affiliato
Studio Pepoli Srl
Via Palermo, 74 91100 Trapani (TP)

2026 Tecnocasa Franchising S.p.A. - P. IVA 08365160152 - Via Monte Bianco 60/A 20089 Rozzano (MI). Ogni agenzia ha un proprio titolare ed è autonoma. Privacy policy | Policy utilizzo | Cookie policy